Lower Lambricks, Rayleigh, SS6 – Nest in Essex
Sold STC
Lower Lambricks, Rayleigh, SS6
Lower Lambricks, Rayleigh, SS6, Lower Lambricks, Rayleigh, Rayleigh, Rayleigh, Rayleigh
  • Guide Price £425,000.00

Description

Guide Price £425,000 – £450,000. Charming 3-bed semi-detached home in sought-after Rayleigh location. 3 well-proportioned bedrooms, stylish 4-pc bathroom, South-facing 80ft garden, detached garage, driveway for 3 cars, convenient for transport, schools, amenities.

Guide Price £425,000 – £450,000

This charming 3-bedroom semi-detached home is set in a sought-after Rayleigh location, offering a blend of character, comfort, and convenience. Styled with a modern industrial cottage feel, the property is full of personality and has been thoughtfully laid out for practical family living.

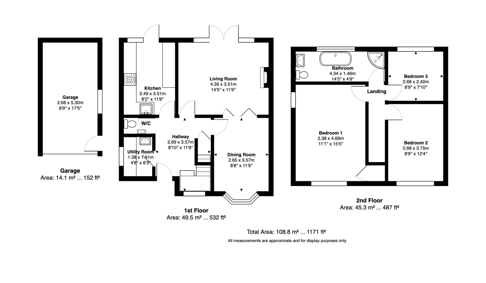
The interior features three well-proportioned bedrooms and a standout 4-piece bathroom, complete with a separate bath and shower – perfect for winding down after a long day. A handy downstairs W/C and a separate utility room add to the functionality of the home.

Step outside and you’ll find a generous 80ft south-facing garden – an ideal space for entertaining, relaxing in the sun, or exploring your green-fingered side. A detached garage and driveway provide parking for up to three vehicles, with the garage offering additional secure storage or potential for conversion (STPP).

Location-wise, everything you need is close by. Rayleigh Station is just a 10-minute walk, offering a direct link to London Liverpool Street in around 45 minutes. For families, Down Hall Primary, Edward Francis Primary, and Fitzwimarc Secondary School are all within a 5-minute walk. Rayleigh High Street is a 15-minute stroll away, with its range of shops, cafes, and amenities.

This is a fantastic opportunity to secure a home in a well-connected, family-friendly location, with generous outside space and plenty of charm throughout.

Living Room

Kitchen

Dining Room

Hallway

Utility Room

W/C

Bedroom 1

Bedroom 2

Bedroom 3

Bathroom

Property Documents

EPC

Details

Updated on November 14, 2025 at 10:25 pm
  • Property ID: d75a4df8-be34-45d2-bdfd-6efd683ceb2c
  • Price: Guide Price £425,000.00
  • Bedrooms: 3
  • Bathroom: 1
  • Property Status: Sold STC

Floor Plans

image

Description:

Overview

Property ID: d75a4df8-be34-45d2-bdfd-6efd683ceb2c
  • 3
  • Bedrooms
  • 1
  • Bathroom

Mortgage Calculator

Monthly
  • Down Payment
  • Loan Amount
  • Monthly Mortgage Payment
  • Monthly HOA Fees
£
%
%
£

Contact Information

View Listings

Enquire About This Property






    By submitting this form I agree to the Terms of Use.


    Compare listings

    Compare